Model House

モデルハウス

Concept

木の香りと暮らす、
港の見えるモデルハウス

仕事や子育てに追われる日々の中で、木のぬくもりや自然の風、
そして光の心地よさを感じながら、愛着を持てる我が家と共に年を重ねていきたい。
そんな想いをお持ちのご家族のためのモデルハウスをご用意いたしました。

森本工務店の
モデルハウスの魅力

01

五感が
木のぬくもりで満たされる、
家族をやわらかく包む空間。

床や柱・梁、壁など、場所ごとに適材適所の木材を取り入れ、さらに使い方も工夫しています。木のぬくもりと多彩な表情を感じられる心地よい空間です。
家で過ごす時間は、一日の大半を占める大事な時間です。毎日を快適にして、自然と家族が笑顔になれる家。そんな家づくりのヒントをたくさんご覧いただけます。

本を読んだり、勉強したりする、スタディコーナー。

本を読んだり、勉強したりする、
スタディコーナー。

ダイニングからみえる景色。心をリセットして落ち着く場所。

ダイニングからみえる景色。
心をリセットして落ち着く場所。

02

等身大の暮らしを叶える、
3~4人家族のための33坪

3~4人家族の暮らしを思い描きながら設計した住まいです。
無垢の木や自然素材に包まれた空間は、家族の心をやさしく癒し、深い軒が夏の強い日差しを和らげ、大きな窓からは四季折々の光や風を感じられます。
生活動線は無駄なく整え、必要な場所にはぴたりと合う造作収納を配置。
毎日の生活がより快適で心地よくなるよう、一つひとつ丁寧に設計しています。

リビングルーム

リビングルーム

力強い梁が印象的なリビングルーム。一枚板から制作したテーブルなど自然の癒しを存分に感じる空間です。

キッチン背面収納

キッチン背面収納

オリジナルの造作収納。木の優しい香りと肌触りを感じる温かみのある空間です。

ただいま手洗い

ただいま手洗い

玄関から入ってすぐに設置した手洗い場。実際の暮らしやすさを追及した導線。

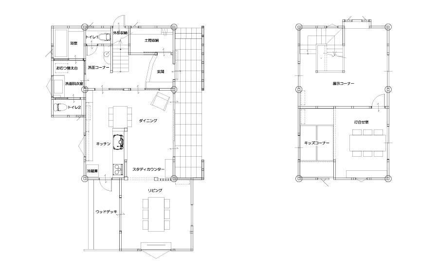
住宅平面図
03

自然素材にこだわって
自然の恵で快適に暮らす工夫

みなとの景色を切り取り採光や採風を考えた窓の計画。
傷みやすい外部には、メンテナンスが少ない焼き板や漆喰などの長持ちする素材を、
室内で人の肌に触れる部分には、健康に配慮した珪藻土や無垢材などの自然素材を、
窓の上には深く伸びた軒・庇を設けることで、自然の光や風の恩恵を感じられる建物になっています。
モデルハウスでは実際に見て、触れて、匂いで自然と共に暮らす空気感を体験していただけます。

04

長く安心できる暮らしに
備えた家づくり。

素材も工法も設備も流行りに流されず、状況や条件に依存しない普遍的なもの。
地震に負けない長く安心して暮らすために必要な、耐震等級最高ランク3 ・断熱等級5・長期優良住宅が森本工務店の家づくりの標準です。

POINT

耐震等級3

耐震等級3は、建築基準法の1.5倍の地震に耐えられる、最も高い耐震ランクです。震度6強~7の大地震でも倒壊のリスクが非常に低い耐震性。家族の命や暮らしを守るために、大切な安心の指標となります。

断熱等級5・ZEH(ゼッチ)基準に適合のUA 値0.6

断熱等級5・UA 値0.6は、高い断熱性能で快適な室内環境を保ち、冷暖房の効率も良く省エネにもつながります。これはZEH(ゼッチ)基準にも適合しており、エネルギー消費を抑えた、家族にも環境にもやさしい住まいを実現します。

05

打合せスペースから見える
キッズルームだから安心

打合せスペースから見えるキッズルームがあるので、お子さま連れでも安心してご利用いただけます。
授乳室やおむつ替えベッドをはじめ、バウンサーやお湯なども完備。
お子さまが快適に過ごせる工夫を凝らしているため、打合せ中もお子さまの様子を確認でき、親御さまも落ち着いてお話しいただけます。
家族みんなが心地よく過ごせる空間です。

コンセプトムービー

基本情報

モデルハウス名
木の香りと暮らす港の見えるモデルハウス
所在地
〒713-8123  岡山県倉敷市玉島柏島5397-5 玉島みなと公園向かい
営業時間
10:00~17:00
敷地面積
261.03㎡(78.96坪) 
建物面積
109.87㎡(33.22坪)
床面面積
1階:67.60㎡(20.44坪)|2階:42.27㎡(12.78坪) 
駐車スペース
3台分
備考
施設内には安心して遊べる広々とした庭スペース、室内キッズルーム完備。

アクセス

よくある質問

Q

家具やインテリア小物は置いてありますか?

A

雰囲気にあわせた家具と小物を常設しているため、実際の暮らしをイメージしながらおくつろぎいただけます。

Q

予約なしでも見学可能ですか?

A

完全予約制となります。平日は予約が取りやすいのでおすすめです。

Q

見学時に、家づくりの相談はできますか?

A

はい、ご相談いただけます。ご予約時にその旨をお伝えください。

Q

モデルハウスに定休日はありますか?

A

イベント予定がある場合や、年末年始は定休日となっています。詳しくは、お電話でお問い合わせください。

見学予約

予約可能日時

お問い合わせ

Contact

森本工務店へは下記よりお気軽にお問い合わせください。
資料請求やご質問などにもご利用ください。